Վերադառնալ

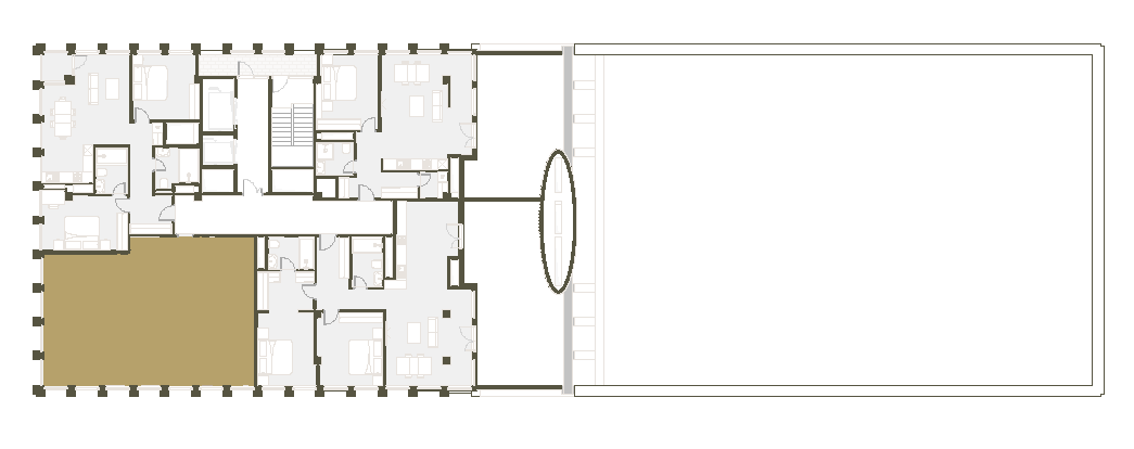
A-1-81

A Մասնաշենք

95.3մ 2

17 հարկ

3 սենյակ

Plan
Plan Plan
Plan
Plan
Banner

/01

Banner

/02

Ինտերիերի դիզայն

Բնակարանները շահագործման են հանձնվելու վերանորոգված․ նոր մշակույթ Հայաստանում։ Դուք ունեք հնարավորություն օգտվելու ինտերիերի դիզայների անվճար ծառայություններից, որոնք մենք կտրամադրենք՝ օգնելու հարմարեցնել և ավարտին հասցնել յուրաքանչյուր բնակարանը։ Դուք կբացահայտեք ինտերիեր դիզայնի լավագույն մեկնաբանությունները՝ համապատասխան ժամանակակից լուծումներին ու հարմարավետության բոլոր սկզբունքներին՝ միաժամանակ լավագույնս համապատասխանեցնելով Ձեր կարիքներին, ցանկություններին։
Իսկ ցուցասրահը, որտեղ դուք կկարողանաք ընտրել և ուսումնասիրել՝ ինչ տեղադրել Ձեր բնակարանում, առավել հեշտ կդարձնի ամբողջ ընթացքը՝ օգնելով արագ կողմնորոշվել: Առաջարկվող փաթեթների բազմազան լինելը նաև կօգնի կատարել ընտրություն՝ համապատասխան բյուջեի ձեր նախընտրելի սանդղակի․ փաթեթները տատանվում են $300 - $1000 ԱՄՆ դոլար՝ մեկ քառակուսի մետրի համար։
Իմանալ ավելին
Banner
Banner
Banner
Banner

Կայանատեղի

Համալիրն ունի երեքհարկանի ավտոկայանատեղի, որն ամբողջությամբ կարող է բավարարել բնակիչների, վարձակալների և հյուրերի կարիքները: Յուրաքանչյուր հարկն ընդգրկում է մեծ տարածություն ինչպես մեքենաների, այնպես էլ անձնական պահեստավորման համար: Յուրաքանչյուր մանրուք մանրակրկիտ պլանավորվել է երթևեկության անխափան հոսքն ապահովելու և անվտանգության բոլոր կանոնները պահպանելու համար: Ավտոկայանատեղին հագեցած է 24-ժամյա CCTV մոնիթորինգով, հակահրդեհային համակարգով և բնակիչների ու հյուրերի համար մուտքի հսկողությամբ։ Ինչպես նաև նախապատրաստվելով ապագային՝ ավտոկայանատեղին կապահովվի EV լիցքավորման կայաններով։ Իմանալ ավելին